303 695 Castle Crag Cres Courtenay, British Columbia V9J 1L0

2 Bedroom 2 Bathroom 806 ft2
Contemporary Fireplace None Baseboard Heaters

$359,900

Maintenance,

$500 Monthly

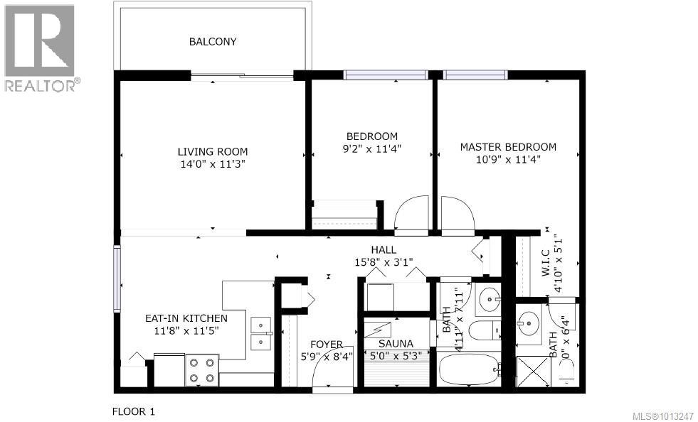
TOP FLOOR, RENOVATED! This recently renovated 2 br/2 bath top floor unit faces south & has some great views. Combined with an open layout, new colors & modern finishes, there is plenty of natural light. Updates include new plank flooring, new paint, new lighting, a new electric fireplace & new trim. Tucked away in the condo is a sauna that is a real treat after a hard day on the slopes. Multiple storage closets, a stacked washer dryer, high speed Fibre (Telus Optik), a great balcony area plus 2 ski large lockers in the hallway. The building has just finished an extensive $2 million dollar exterior renovation including metal siding and many other improvements. Short walk from the winter parking lots and easy access to slopes. Pets and rentals are allowed. This is a 24-unit cooperative building, and this is a share sale. Quick possession available! (id:50419)

Property Details

MLS® Number 1013247
Property Type Single Family
Neigbourhood Mt Washington
Community Features Pets Allowed With Restrictions, Family Oriented
Plan Vis799

Building

Bathroom Total 2
Bedrooms Total 2
Appliances Refrigerator, Stove, Washer, Dryer
Architectural Style Contemporary
Constructed Date 1980
Cooling Type None
Fireplace Present Yes
Fireplace Total 1
Heating Type Baseboard Heaters
Size Interior 806 Ft2
Total Finished Area 806 Sqft
Type Apartment

Parking

Other

Land

Acreage No
Zoning Description Mtw-cd
Zoning Type Multi-family

Rooms

Level Type Dimensions
Main Level Bathroom 2-Piece
Main Level Bathroom 4-Piece
Main Level Entrance 8'4 x 5'9
Main Level Kitchen 11'8 x 11'5
Main Level Living Room 14 ft x Measurements not available
Main Level Bedroom 11'4 x 9'2
Main Level Bedroom 11'4 x 10'9

https://www.realtor.ca/real-estate/28848590/303-695-castle-crag-cres-courtenay-mt-washington

Contact Us

Contact us for more information

Ryan Williams
Personal Real Estate Corporation

(250) 334-6432
www.ryanwilliams.ca/
www.facebook.com/RyanWilliamsRemax?ref=hl

RE/MAX Ocean Pacific (Cx)
282 Anderton Road
Comox, British Columbia V9M 1Y2

(250) 339-2021
(888) 829-7205
(250) 339-5529
www.oceanpacificrealty.com/