517 Dogwood St Campbell River, British Columbia V9W 2Y4

1 Bedroom 1 Bathroom 702 ft2
Fireplace None Other

$399,900

Step inside the warm and inviting interior featuring fresh paint, new flooring, and updated baseboards. Outside, the possibilities are outstanding. The large backyard includes a massive concrete pad—ideal for a future garage, workshop, or studio, already supported by 200-amp electrical service plus dedicated water and sewer lines. Whether you’re dreaming of owning your own home, investing in a great rental property, or securing a property for future development you’re set up for success as this property is located within the new Dogwood Corridor Residential zone, which allows for future development of apartments and more, making this one of the most promising long-term investment opportunities in the city. (id:50419)

Property Details

MLS® Number 1021235
Property Type Single Family
Neigbourhood Campbell River South
Parking Space Total 3
Plan 8900

Building

Bathroom Total 1
Bedrooms Total 1
Appliances Refrigerator, Stove, Washer, Dryer
Constructed Date 1951
Cooling Type None
Fireplace Present Yes
Fireplace Total 1
Heating Type Other
Size Interior 702 Ft2
Total Finished Area 702 Sqft
Type House

Parking

Open

Land

Acreage No
Size Irregular 7492
Size Total 7492 Sqft
Size Total Text 7492 Sqft
Zoning Description Dcr
Zoning Type Residential

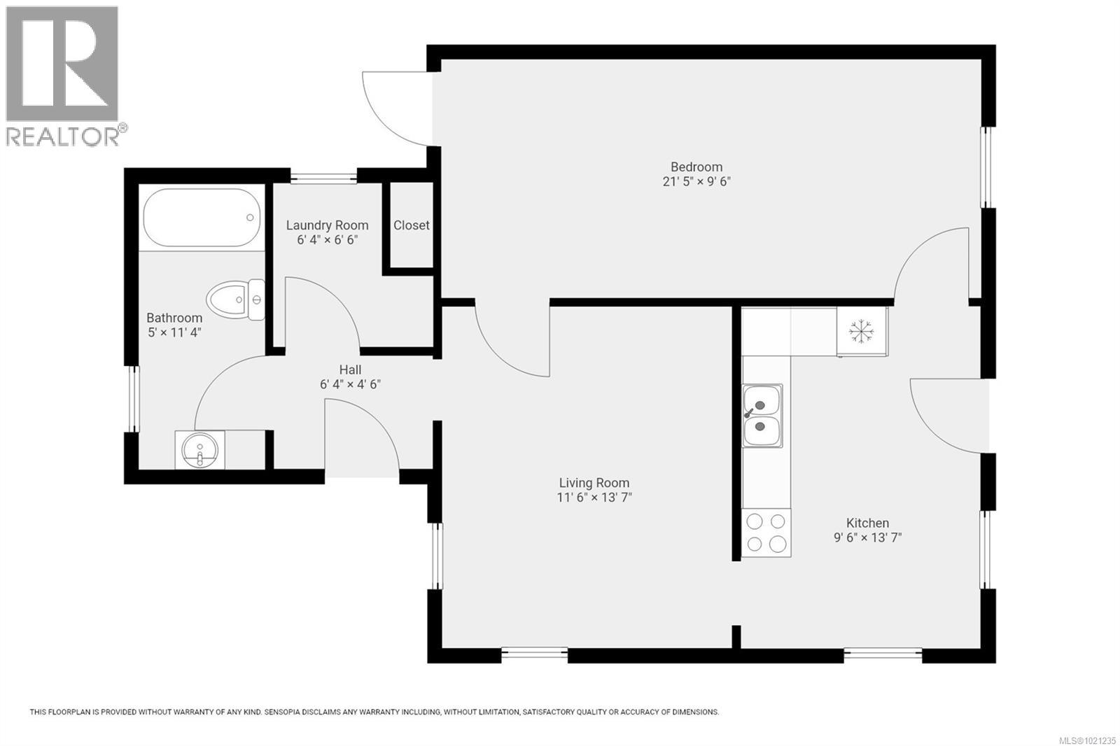
Rooms

Level Type Dimensions
Main Level Laundry Room 6'6 x 6'4
Main Level Bathroom 11'4 x 5'0
Main Level Primary Bedroom 9'6 x 21'5
Main Level Living Room 13'7 x 11'6
Main Level Kitchen 13'7 x 9'6

https://www.realtor.ca/real-estate/29144517/517-dogwood-st-campbell-river-campbell-river-south

Contact Us

Contact us for more information

Sophie Gardner
Personal Real Estate Corporation

(250) 204-0828
www.sophiegardner.ca/
www.linkedin.com/in/sophiegardner/
x.com/CRrealtorgirl
www.instagram.com/sophiegardnerhometeam/

Real Broker
104-909 Island Hwy
Campbell River, British Columbia V9W 2C2

(888) 828-8447
(888) 828-8447
(855) 624-6900

Ryley Goorts

(250) 203-2729

Real Broker
104-909 Island Hwy
Campbell River, British Columbia V9W 2C2

(888) 828-8447
(888) 828-8447
(855) 624-6900