Maintenance,
$591.20 MonthlyOcean Views | Heron’s Landing | Walkable Coastal Lifestyle Welcome to Heron’s Landing, where ocean views and an exceptional lifestyle come together. This immaculate 3-bedroom, 3-bathroom townhome is perfectly positioned just steps from the Courtenay Riverway Heritage Walk, a breathtaking estuary and bird sanctuary with a waterfront pathway ideal for walking, biking, and kayaking right from your doorstep. The home features a bright, open-concept kitchen and dining area with stunning ocean views, extending to multiple outdoor spaces. With three private decks, including one off the expansive top-floor primary suite, you’ll always have a place to relax and take in the coastal air. Extensive updates provide both comfort and peace of mind, including Poly B remediation, smooth ceilings (no texture), attic remediation with added insulation, fresh paint throughout, and new appliances (fridge, stove, microwave). The inviting living room features a cosy gas fireplace, and the main deck includes a natural gas BBQ hookup perfect for entertaining. A flexible layout includes a Murphy bed in the second bedroom, ideal for guests or a home office. With three bedrooms and three bathrooms, there’s space for family, visitors, or working from home. Additional highlights include a double-car garage and a professionally managed, pet- and family-friendly complex. Step outside and enjoy direct access to nature, trails, and water, all while being just across from shopping, dining, and everyday amenities. A rare opportunity to own in Heron’s Landing, where ocean views, outdoor living, and convenience meet. (id:50419)
| MLS® Number | 1033356 |
| Property Type | Single Family |
| Neigbourhood | Courtenay City |
| Community Features | Pets Allowed With Restrictions, Family Oriented |
| Features | Park Setting |
| Parking Space Total | 2 |
| Water Front Type | Waterfront On Ocean |
| Bathroom Total | 3 |
| Bedrooms Total | 3 |
| Constructed Date | 1995 |
| Cooling Type | See Remarks |
| Fireplace Present | Yes |
| Fireplace Total | 1 |
| Heating Fuel | Natural Gas |
| Heating Type | Forced Air |
| Size Interior | 1,722 Ft2 |
| Type | Row / Townhouse |
| Acreage | No |
| Zoning Type | Multi-family |
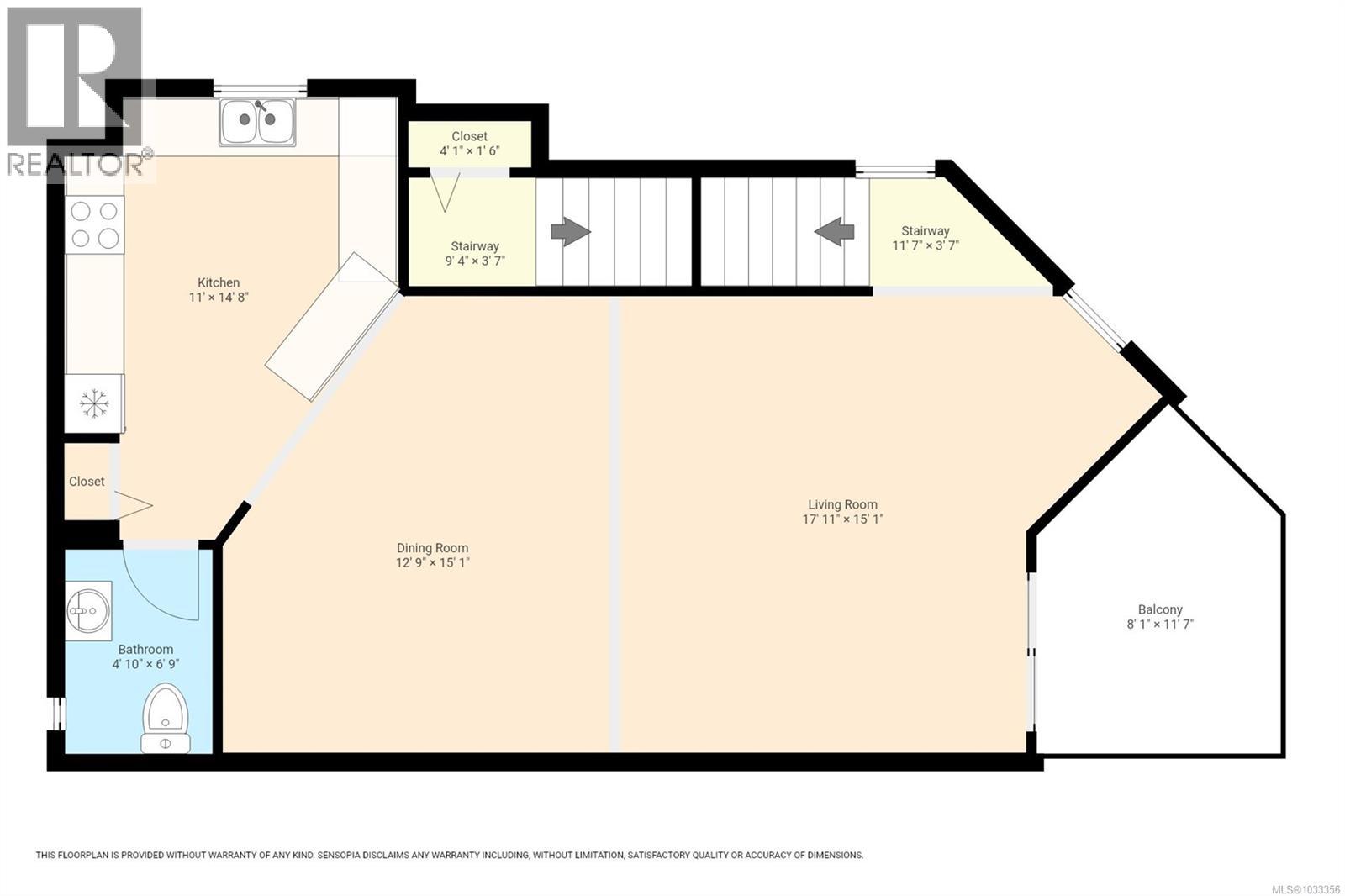
| Level | Type | Length | Width | Dimensions |
|---|---|---|---|---|
| Second Level | Laundry Room | 6 ft | 10 ft | 6 ft x 10 ft |
| Second Level | Bathroom | 3-Piece | ||
| Second Level | Balcony | 11 ft | 4 ft | 11 ft x 4 ft |
| Second Level | Balcony | 7 ft | 10 ft | 7 ft x 10 ft |
| Second Level | Ensuite | 3-Piece | ||
| Second Level | Primary Bedroom | 17 ft | 18 ft | 17 ft x 18 ft |
| Second Level | Bedroom | 14 ft | 10 ft | 14 ft x 10 ft |
| Lower Level | Entrance | 9 ft | 14 ft | 9 ft x 14 ft |
| Lower Level | Bedroom | 12 ft | 19 ft | 12 ft x 19 ft |
| Main Level | Balcony | 12 ft | 8 ft | 12 ft x 8 ft |
| Main Level | Bathroom | 2-Piece | ||
| Main Level | Living Room | 15 ft | 18 ft | 15 ft x 18 ft |
| Main Level | Dining Room | 15 ft | 13 ft | 15 ft x 13 ft |
| Main Level | Kitchen | 15 ft | 11 ft | 15 ft x 11 ft |
https://www.realtor.ca/real-estate/29650854/5-3020-cliffe-ave-courtenay-courtenay-city
Contact us for more information
Deb Gyles
Personal Real Estate Corporation
(833) 817-6506
(833) 817-6506
exprealty.ca/